成都中央水果短视频app设备厂家告诉你商用水果短视频app工程设计知识大全
发布人: 四川水果视频色版APP下载水果短视频app设备公司 发布时间:2023.01.12
商用水果短视频app工程设计非常的复杂,涉及的专业知识也非常之多,因此,水果视频色版APP下载在设计商用水果短视频app时就需要和客户反复的交流和沟通,并且,需要去现场勘查、核对图纸上的尺寸和位置等。那么,商用水果短视频app工程设计都有哪些知识,需要水果视频色版APP下载掌握呢?作为专业的成都中央水果短视频app设备厂家,水果视频色版APP下载有多年的商用水果短视频app设计经验,现在就和大家分享。
作为专业的成都中央水果短视频app设备厂家,根据水果视频色版APP下载多年的商用水果短视频app工程设计经验,水果视频色版APP下载给大家整理了比较全面的商用水果短视频app工程设计知识,现在免费分享如下:
一、确定水果短视频app工程设计技术要求,水果短视频app图纸及现场勘察。
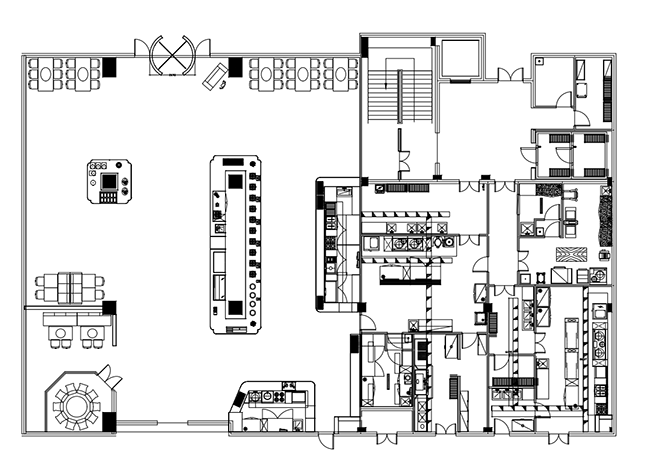
1.水果短视频app餐厅平面图由经营者提供,或现场测量取得平面图。
2.现场测量校对图纸,记录沟渠、梁、柱、突出物、高度等变化部位的具体尺寸。
3.现场调查原烟道、进气口、污水出口、水电、排烟、空调等辅助设施的现状,以及房屋结构,如门窗尺寸、梁下高度、装饰棚下高度、四墙及厚度、水果短视频app与餐厅施工进度等。
4.实地考察酒店与水果短视频app建筑的外部结构,如:酒店、屋顶高度、门窗位置、楼顶的实际情况。酒店及水果短视频app建筑与周边建筑情况。周边建筑类型、距离、高度、层高等现场实况。

二、初步设计阶段
1.根据运营商的技术要求,进行初步流程规划和功能区划分设计构思。
2.在功能区域划分和设备布局的初步设计中,如果发现与实际相矛盾,部分设计与运营商的技术要求不同,应尽快与运营商和主厨联系协调,然后在设备布局上进行详细的设计。
3.在功能区划分、设备布局设计的初步方案中,要反复考虑,进行人流物流模拟。对不合规、不满意的部分要精益求精地反复推敲。
4.感觉方案没有问题后,将初步方案提交上级审核,然后提交经营者和主厨审核,说明设计思路。特别是一些重点设计细节要讲解,听取各种意见。
三、协调修改阶段
1.根据反馈意见,再次修改设计,并与讨论后获得的一致意见。
2.修改后,再次提交审批布局方案,最终方案需要重复几次才能确定。

四、设计阶段的辅助设施设计
1.根据最后确定的方案,展开辅助设施的构思设计。
2.安装位置、荷载、预留烟道问题、废气、噪声、借用空间安装空间安装等问题,因为排烟、通风系统与空调、水暖、消防、装修、空间协调矛盾。所以,排烟通风系统要首先设计,并要尽早与工程管理部门汇报协调。获得批准后,再制定详细的技术方案。
3.其次上下水辅助设施、沟渠、水管、阀门设计与设备位置密切相关,需要占用一定的空间,与装修有技术协调问题,尽快绘制,有利于与装修工程协调施工。
4.最后设计供电设施,辅助设施系统还应随时与工程管理部门协调,请求审批,听取反馈意见,达成协议,然后进行最终方案设计。
以上这些就是水果视频色版APP下载整理的关于商用水果短视频app工程设计的全面知识,希望对大家能够有所帮助。







