你的浏览器已禁用javascript,请启用javascript,否则网页将非正常运行!





  • 水果视频色版APP下载,水果短视频app,水果视频黄手机在线,水果视频软件污下载官方

    学校水果短视频app工程





  • 水果视频色版APP下载,水果短视频app,水果视频黄手机在线,水果视频软件污下载官方

    COMPOSITION

    企事业单位食堂组成部分

    企业员工食堂水果短视频app设计的功能区域可划分食品接收、储藏及加工区域、烹饪作业区域、备餐洗涤区域、餐厅和其他行政工作用房。

    RegionalDivision

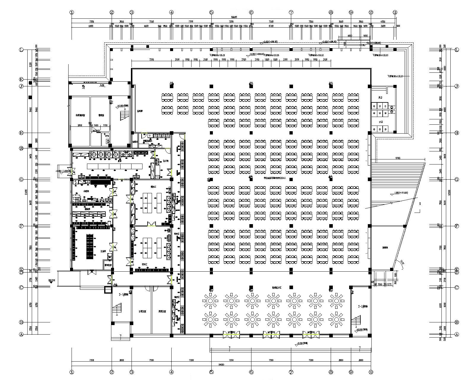
    企事业单位食堂区域划分

    规模较大的机关、企事业等单位均设有自己的员工食堂,其构成与一般饭店、酒楼的水果短视频app不同,它着重于主食、副食的制作加工,菜品相对简单。因员工食堂出菜时间比较集中,所以水果短视频app应多配置烹调加热设备。

    企事业单位食堂区域划分

    企事业单位食堂区域划分平面图

    RegionalDivision

    企事业单位食堂特殊性

    员工餐厅
    餐厅应有足够的净空高度,保持宽敞、明亮、通风、洁净。餐厅应面向集中人流主导方向,门前场地开阔,门厅畅通,便于人流的集中和疏散。
    备餐间、熟食间
    这里是熟食成品配制、分发、供应的主要场所,应采用全封闭式结构,与饭厅间应用玻璃墙相隔。
    热加工间
    主、副食品的热加工间是烹饪的主要场地,各类炉灶设备和烘烤设备集中,故而长条形的热加工间较为适用。
    主、副食品加工间
    主、副食品应分流进行加工,主食主要有面食、米饭的粗加工和成型,副食品加工主要分为拆洗和刀工切配。需要宽敞的加工场地,故而长 条形流水线式的副食加工间更为适宜。
    水果短视频app加工区域
    对原料进行粗加工、精加工等工作。
    水果短视频app加工区域
    主食加工间
    仓库
    按物资的类别分为主食仓、副食仓、闲杂仓、杂物仓、干货仓、冷库等。库房的位置要道路畅通,便于进货和方便领料。库房的运输走廊宽度 应不小于1.5米。

    Design considerations

    水果视频色版APP下载对企事业单位水果短视频app的解决办法

    企事业单位水果短视频app工程的设计应符合与健康安全要求相关的国家及地方法规,水果视频色版APP下载用专业眼光解决问题。

    例如,某些企业员工工作时需操作大型机械设备,容易沾染机油等物,极易导致饭前洗手不彻底,致使 细菌、污物入口。在设计这类企业食堂时,水果视频色版APP下载为其增设了一个专门的净手消毒入口。

    如何选用水果短视频app设备:由于事业单位内有大量重要资料,为保护资料及员工的人身安全,在选用水果短视频app设备时 炉膛和水果短视频app门应使用防火材料。优伯特只选择安全设备,紧抓质量保证,落实安全性能。有条件的单位, 应设置个人护理,注意设备的使用安全及定期保养。燃气水果短视频app需定期检查阀门泄漏情况,一经发现,应充 分通风,严禁明火,立即进行维护。电气设备的水果短视频app需定期检查线路是否老化、分裂、短路,清洗设备时 应断电,禁止直接用水冲洗。一旦所有设备发生故障,需及时进行检修,完成故障排除后方可继续使用。

    最后,每项功能都按需求设置,水果视频色版APP下载根据水果短视频app面积大小进行设计,符合厨师的工作需求。水果视频色版APP下载不会选择 质量太低的设备,而是在满足预算的基础上,根据相应型号,合理选择高质量的设备。

    Implementation process

    工程实施流程

    Why did you choose us?

    为什么选择水果视频色版APP下载

    • 丰富的水果短视频app设计经验
    • 专业化施工队伍
    • 实力雄厚品质保障
    丰富的水果短视频app设计经验
    丰富的水果短视频app设计经验
    丰富的水果短视频app设计经验
    丰富的水果短视频app设计经验
    专业化施工队伍
    专业化施工队伍
    专业化施工队伍
    专业化施工队伍
    实力雄厚品质保障
    实力雄厚品质保障
    实力雄厚品质保障
    实力雄厚品质保障

    Service case

    工程服务水果视频软件污下载官方

    中石油集团公司
    中石油集团公司
    中海油集团公司
    中海油集团公司
    中国核动力研究院
    中国核动力研究院
    国家电网
    国家电网

    About Ubat

    关于水果视频色版APP下载

    网站地图
      
      网站地图